Cliente
Privado
Año
2025
Ubicación
San Luis Potosí, Mx
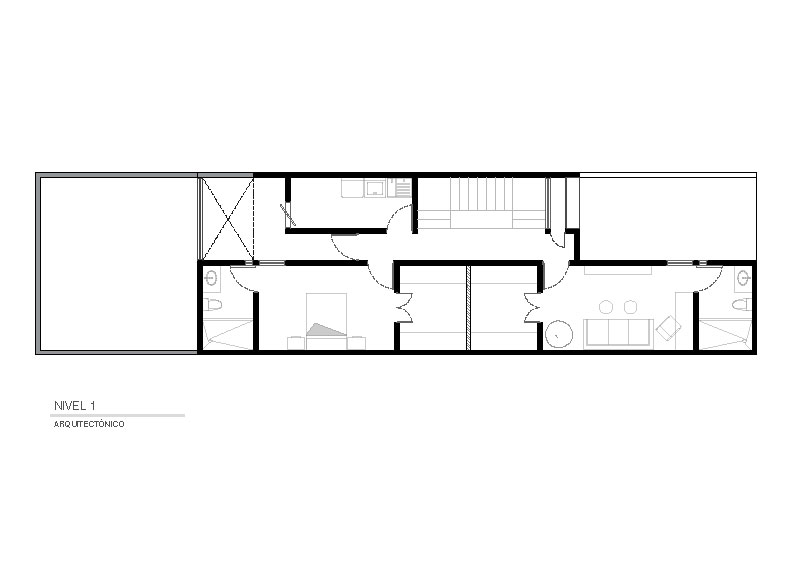
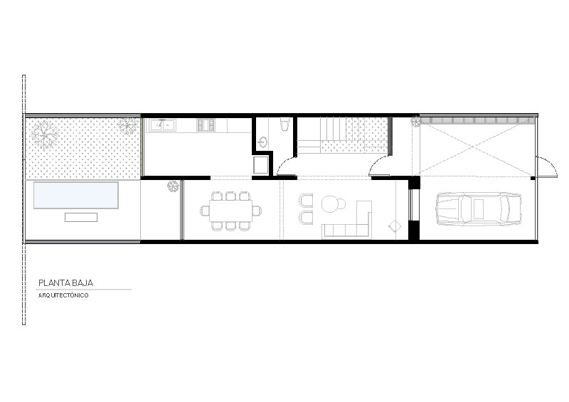
Casa Chukum
Una remodelación arquitectónica cuya estructura original se conserva como pie de obra, como un acto simbólico de memoria y continuidad para la familia.
La intervención se estructura a partir de un eje longitudinal, que corta la propiedad en dos, generando una trama espacial dinámica y desplazada respecto a la geometría original. Este desfase provoca una sucesión de planos que se superpone, creando una secuencia de espacios que se van alternando en sentido transversal; que ofrece zonas de transición, luz controlada y relaciones inesperadas.










